
Ubicada en el campus Drienerlo de la Universidad de Twente, en Enschede, Países Bajos, la nueva sede del ITC —el Instituto Internacional de Ciencias de la Información Geoespacial— se presenta como un referente académico y arquitectónico en materia de sostenibilidad. Diseñado por Civic Architects junto a VDNDP, Studio Groen+Schild y DS Landscape Architects, el proyecto propone la transformación de un edificio existente en lugar de una nueva construcción, reforzando así su compromiso ambiental.

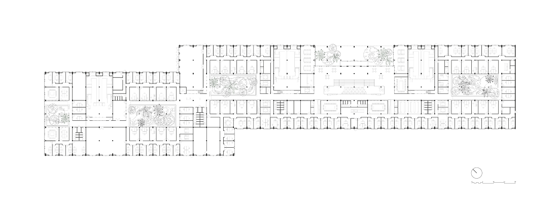
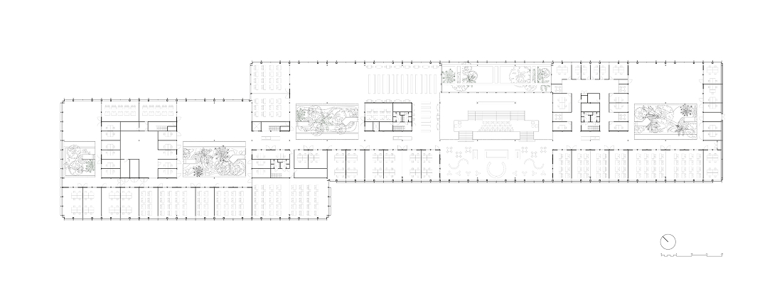
El proyecto recupera y adapta el edificio Langezijds, un antiguo laboratorio construido en 1972, cuyas dimensiones extremas —220 metros de largo por 38 metros de profundidad— representaban tanto un desafío como una oportunidad. Con una sola intervención estructural decisiva, el diseño reconfigura el edificio para su nuevo programa mediante la incorporación de cuatro grandes patios excavados en la masa construida, que introducen luz natural, ventilación y vegetación en el corazón del conjunto.

El volumen, aparentemente compacto, oculta un juego de llenos y vacíos. Cada aula se refleja hacia afuera, prolongandose en patios de aprendizaje al aire libre, protegidos y enmarcados por el patio circundante. En el exterior, el edificio se posa sobre una base de hormigón pigmentado que se encuentra delicadamente con el suelo, funcionando a la vez de mobiliario urbano y en un umbral lúdico entre lo didáctico y lo espontáneo.


La arquitectura establece una relación directa con el paisaje del campus, caracterizado por edificaciones modernistas inmersas en un entorno verde. Los patios funcionan como articuladores entre interior y exterior, albergando jardines que favorecen la biodiversidad y crean microecosistemas capaces de mejorar la calidad del aire y generar un ambiente de trabajo saludable. Uno de estos patios se convierte además en el acceso principal: la fachada se retrae, el paisaje se pliega hacia el interior y los árboles ingresan al edificio.


La organización espacial responde a una lógica climática y funcional. Las oficinas, que requieren mayor estabilidad térmica, se ubican en la planta baja más fresca, mientras que las aulas y espacios educativos de mayor escala ocupan el nivel superior. Elementos reutilizados, como parasoles existentes en la fachada sur, contribuyen al control solar. Un sistema de plenum de aire integrado en el piso técnico concentra las instalaciones y permite mantener visibles las losas originales de hormigón, reforzando el carácter del edificio y optimizando las alturas interiores. La ventilación natural se produce a través de los patios, concebidos como los pulmones verdes del conjunto.


La intervención asume y pone en valor la estructura existente. El hormigón y el acero permanecen a la vista, con sus huellas de uso y transformaciones previas. Cortes en las losas revelan antiguos niveles, y columnas en desuso se conservan como vestigios dentro de los patios. Materiales cálidos como revestimientos de roble y pisos de bambú equilibran la rudeza del conjunto. No se utiliza pintura: el principio rector es que la construcción sea, en sí misma, el acabado final. Todo el proyecto —muros, escaleras, equipamiento e instalaciones— se organiza según una modulación precisa de 1,55 metros.

La nueva sede del ITC se consolida así como una plataforma sostenible que refleja la misión global de la institución: un edificio que integra arquitectura, paisaje y reutilización consciente, y que ofrece un entorno propicio para el intercambio académico y la investigación orientada al futuro.
