
La Casita Hedonista es un proyecto de ampliación y remodelación de un PH en Buenos Aires, diseñado por Fabrizio Pugliese Arquitectos + Ohio Estudio para una artista y escritora. La intervención parte de la decisión de conservar la preexistencia de la vivienda, manteniendo su huella material y espacial como punto de partida para la transformación.


Desde el inicio, el equipo decidió mantener la preexistencia de la casa, conservando su vestigio. Se dejaron a la vista los muros de ladrillo originales y se restauró la pinotea. Sobre la construcción existente se diseñó una estructura tubular metálica que resolvió los nuevos metros cuadrados y dio lugar a un nuevo hogar.


Durante el proceso de diseño, la propietaria presentó la obra A Bigger Splash de David Hockney. A partir de ella se construyó una paleta cromática específica para cada espacio y situación. El proyecto entendió el color no como una intervención superficial, sino como una lógica espacial que acompañó la experiencia del habitar.


¿Qué se piensa cuando se habla de habitar? ¿Cómo se despliega el cuerpo en el espacio y lo convierte en hogar? El hogar aparece como el microcosmos de cada persona. Aquí se exploró la desmaterialización de los preconceptos estandarizados sobre los espacios domésticos: el habitar se desprendió de sus etiquetas y se redefinió en cada intercambio con quien lo viviría.




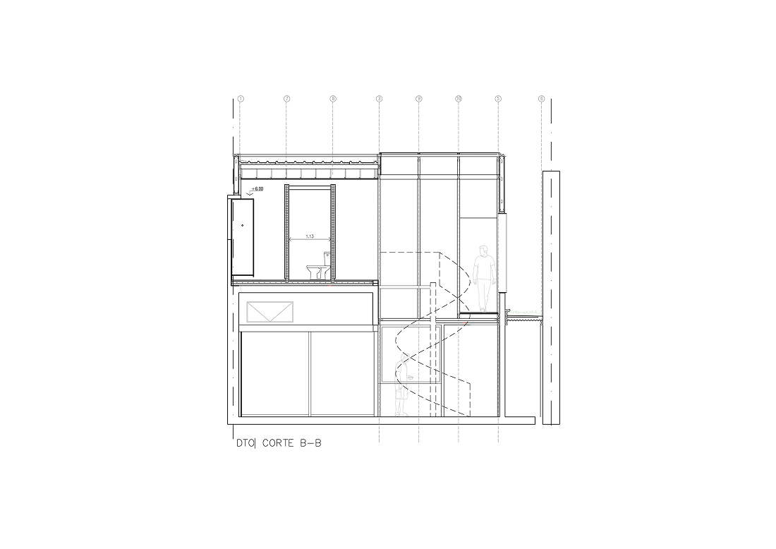
En planta baja se recuperó el patio típico de los PH y se lo transformó en un pulmón verde donde se desarrolló la circulación vertical. La escalera helicoidal, ubicada bajo una cubierta transparente, conectó los distintos niveles e inundó de luz natural el interior, manteniendo la relación visual con el cielo y aprovechando la orientación del terreno.


Una operación rectangular se transformó en un conversation pit de color suela, pensado como un espacio para contemplar el fuego, leer, mirar una película, reunirse y escuchar música.


La cocina celeste se orientó hacia el patio y funcionó como vínculo entre el interior y el espacio semicubierto, permitiendo cocinar sin perder la conexión visual y social con el jardín. Al fondo del terreno, la pileta –dimensionada para nadar largos– se remató con un hidromasaje. También se recicló una volumetría existente para generar el guest house, al que se accedió por el pasillo típico del PH sin atravesar la casa principal. La vivienda pudo cerrarse por completo mediante postigones.


En la planta intermedia se ubicaron una habitación con acceso a la terraza verde, el lavadero y un baño completo en tonos celeste y ocre. Este baño se conectó mediante un conducto con el espacio de dormir del nivel superior, permitiendo depositar la ropa sucia sin necesidad de bajar.


En la última planta se diseñó un espacio íntimo compuesto por el dormitorio principal, el baño y el escritorio. La propuesta evitó la habitación estándar y planteó un “espacio de dormir”: la cama como objeto, articulada con un volumen cilíndrico que concentró los elementos más privados del baño. La bañera se ubicó bajo un óculo rodeado de vegetación, permitiendo bañarse mirando el cielo.


El escritorio se orientó hacia la terraza verde y el jardín. Todo el conjunto se articuló mediante un mueble rosado que integró guardarropas, área de bacha principal, biblioteca y asiento de lectura. Este nivel pudo abrirse o cerrarse completamente hacia el patio techado, recibiendo luz natural durante todo el día.


Las distintas alturas del hogar propusieron múltiples experiencias: descender al conversation pit, reunirse en la mesa del comedor o compartir en la barra de la cocina. El proyecto exploró así cómo el habitar pudo convertirse en un acto de placer, identidad y encuentro.






