
La necesidad de reemplazar la infraestructura original, construida en la década de 1950 y ya obsoleta en términos de resistencia sísmica, llevó a organizar un concurso internacional de arquitectura en dos fases.



El desafío consistió en reconstruir el colegio en su totalidad mientras seguía en funcionamiento, sin interrumpir las clases. Para lograrlo, el proyecto contempló un plan de construcción y demolición por etapas, adaptado tanto a la normativa francesa como a la peruana.

La propuesta se estructura en tres principios pedagógicos, con la arquitectura como marco facilitador: estimular el componente lúdico del aprendizaje; habilitar metodologías que reconozcan distintas formas de inteligencia; y promover experiencias fuera del aula para fortalecer la inteligencia social y la generación espontánea de vínculos.

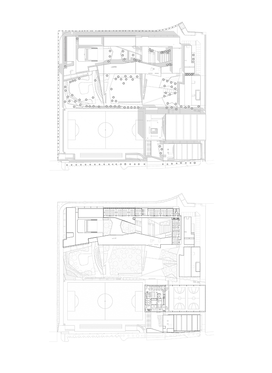
El partido arquitectónico responde a las condiciones del predio, organizando el conjunto en tres franjas funcionales. La primera, junto a la Vía Panamericana, concentra las áreas administrativas y deportivas, generando una barrera acústica que protege al colegio del tráfico intenso. La franja académica se ubica en el extremo opuesto, sobre las antiguas canchas deportivas, lo que evitó demoliciones mayores y permitió la continuidad de las actividades. Entre ambas se abre una franja ecológica, concebida como un jardín activo en torno al medio ambiente. Allí, estudiantes y docentes desarrollan actividades de agricultura urbana, reciclaje y observación e investigación de flora y fauna.


La franja académica, ya concluida, se materializa en un único edificio que reúne nivel inicial, primaria y secundaria. A cada nivel se accede desde el jardín central, a través de recorridos que se ramifican por rampas entre árboles, y un umbral cromático los diferencia. Los diferentes niveles se articulan en torno a patios abiertos diseñados según la edad de los alumnos, multiplicando los espacios intermedios para el aprendizaje informal.

Aunque funcionalmente autónomas, estas unidades se mantienen conectadas visualmente. Las limitaciones normativas en número de niveles –uno para inicial, dos para primaria y tres en secundaria– se aprovecharon para superponer los espacios de aprendizaje informal, extendiendo sus cubiertas como áreas activas sin afectar la independencia de cada ciclo. Grandes toldos retráctiles protegen del sol y configuran un “gran interior” flexible y no programático, disponible para la vida escolar.

