
El emplazamiento histórico de Kunzwerk está marcado por una paradoja típica de las antiguas zonas industriales: en constante cambio producto del progreso de los procesos industriales, en contraste con la permanencia de la infraestructura —aquí definida por la energía hidráulica—. En este caso, la transformación implica la reocupación del antiguo emplazamiento de la casa de calderas Kesselhaus.

La implantación del proyecto se toma de las proporciones originales del edificio Kesselhaus, la morfología de las edificaciones vecinas y la apertura generada en los años sesenta tras la demolición de los edificios anteriores del Kunzwerk, que amplió el eje espacial de la calle Dorfstrasse hasta el Giessplatz.

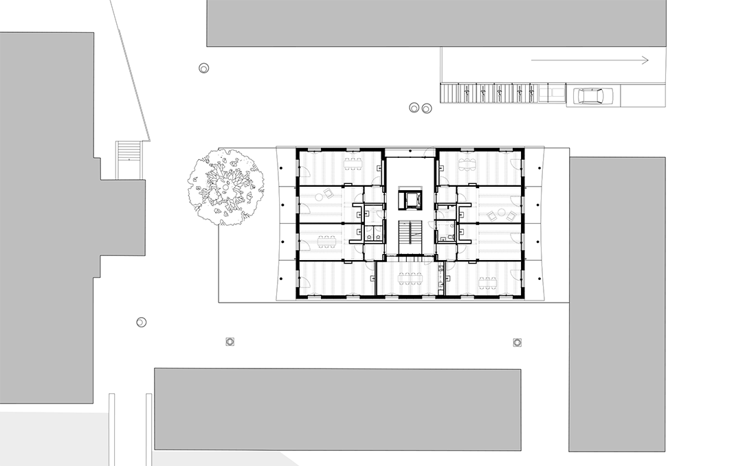
La nueva construcción se dispone en dirección norte-sur, utilizando toda la profundidad del lote. De esta manera, se acerca el nuevo edificio al taller Diesel, redefiniendo el Giessplatz como espacio de llegada frente al taller eléctrico. La planta resultante admite una disposición eficiente de unidades de entre cuatro a nueve unidades por núcleo, con una escalera central. El acceso principal se ubica hacia el norte.


Entre el Kunzwerk y el nuevo edificio se ubican los estacionamientos cubiertos para bicicletas y para visitantes a lo largo de la rampa existente de acceso. El espacio libre en planta baja es flexible y multifuncional, admitiendo diversas apropiaciones: plaza de juegos, mercado o punto de encuentro.


El revestimiento exterior de chapa ondulada coloreada junto con la estructura visible en los balcones y las losas perimetrales además del colorido parasol textil y las barandas tejidas, conforman una fachada ligera y alegre. El resto de la estructura es híbrida, materializada en madera y hormigón según los requerimientos de conductividad térmica, densidad, resistencia a la humedad, inflamabilidad, rigidez y sostenibilidad.

La transmisión horizontal de cargas, resultante de la acción del viento y los sismos, se produce a través del núcleo de circulación, materializado en hormigón armado. Las cargas se conducen mediante losas diafragma hacia los núcleos de escaleras y desde allí hasta los cimientos. Dado que el terreno apto para fundaciones se encuentra a dos metros de profundidad, en las zonas donde el edificio cuenta con subsuelo, se proyecta una losa de fundación mientras que cuando no hay subsuelo se utilizan micropilotes. En las fachadas, las cargas verticales se transmiten mediante muros de entramado de madera portante y un sistema de vigas y pilares en la zona de las carpinterías. En el interior, las vigas compuestas de madera y hormigón descargan sobre vigas de madera de haya laminada.
