
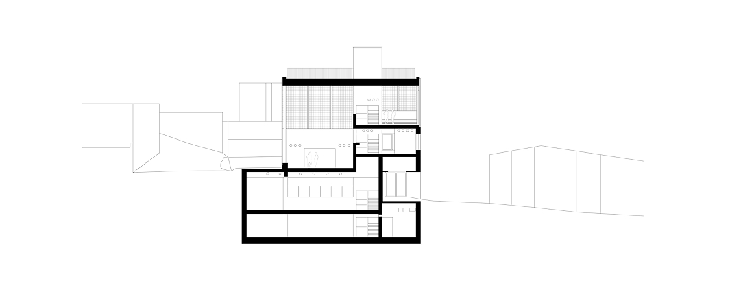
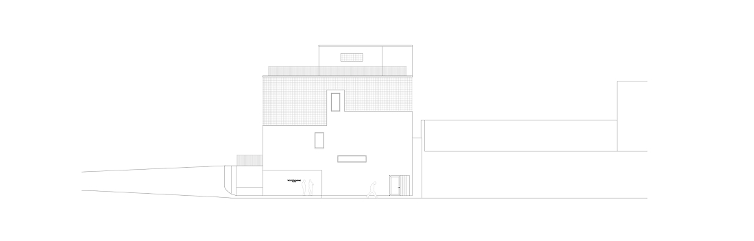
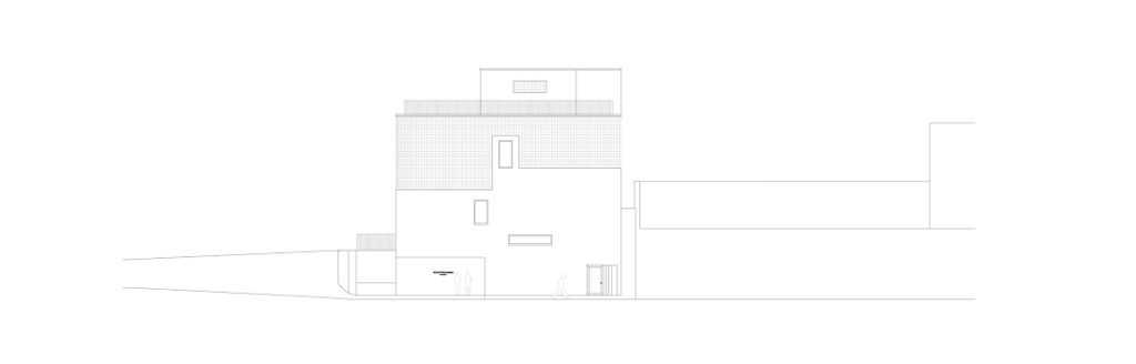
El nuevo flagship store de la marca Wooyoungmi, ubicado en el barrio de Itaewon, en Seúl, se inserta con precisión en el contexto urbano circundante. El lote, situado a lo largo de un tramo de calle curvo y con una leve pendiente, condiciona de manera determinante las decisiones volumétricas. La forma del edificio deriva directamente del perímetro de la parcela urbana, dando lugar a un volumen cuyas geometrías dialogan con la curvatura de la calle y con su entorno inmediato.



La arquitectura, resuelta a partir de pocos materiales cuidadosamente seleccionados y utilizados con precisión, ofrece un marco sobrio para las colecciones sartoriales. El hormigón visto, ejecutado con encofrados de OSB y tratado con una veladura mineral, pone en valor la pátina y la textura del material, evocando un tejido entrelazado cuya estructura y carácter se transforman con el uso. La fachada, conformada por bloques de vidrio, permite el ingreso de una luz difusa durante el día que, al caer la noche, se convierte en una iluminación suave hacia el exterior. La luz trasciende la percepción visual para conectar el espacio con la sensibilidad humana y transmitir de manera inmediata la dimensión emocional de la arquitectura.




Para adaptarse al desnivel natural del terreno, el proyecto incorpora un sistema de medios niveles articulados por un núcleo vertical central. Este elemento actúa como columna vertebral del edificio, posibilitando una secuencia espacial continua y potenciando los espacios expositivos, donde las distintas alturas generan proporciones y atmósferas diversas.


Hormigón, vidrio, acero, piedra y madera constituyen la base material del proyecto. Lejos de ser elementos decorativos, su elección responde a criterios funcionales y estructurales. En su sobriedad, definen un espacio donde las prendas expuestas asumen un rol protagónico y contribuyen a construir la identidad del lugar.


Así, el proyecto deposita una confianza radical en la espacialidad generosa y acogedora que ofrecen estos edificios, y la extiende hacia un nuevo conjunto. Se incorporan cuidadosamente variantes de columnas, paneles de fachada y vigas de hormigón. Lo antiguo y lo nuevo están claramente emparentados. Los nuevos elementos retoman el ritmo de las estructuras existentes, al tiempo que introducen bordes y líneas más suaves. Los edificios se elevan y se amplían, como si el diseño original continuará desarrollándose. Una nueva sala teatral, con una fachada de hormigón portante, se integra de manera fluida en el conjunto.






