
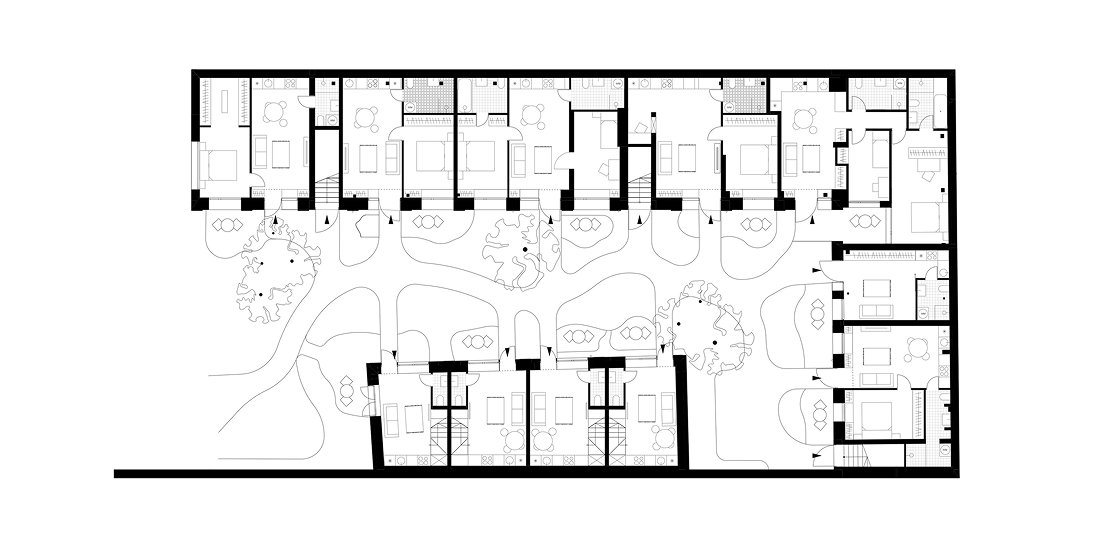
Augustine’s Garden es un conjunto residencial formado por una casa de inquilinos de estilo art nouveau y antiguas edificaciones industriales de baja altura ubicadas alrededor de un patio. El proyecto incluyó la renovación de las fachadas del edificio que dan hacia la calle y la reconstrucción de los edificios que dan hacia el corazón de manzana, adaptándolos a un uso residencial. El patio fue transformado en un jardín urbano contemporáneo cuya estética postindustrial refleja el concepto de adaptive reuse: preservar y adaptar cualquier edificio a un nuevo uso, independientemente de su valor arquitectónico original.


El edificio que está sobre la calle —la casa de inquilinos art nouveau proyectada en estilo Romántico Nacional por el arquitecto Aleksandrs Vanags— fue renovado y aislado. Se trató de una intervención especialmente delicada debido al carácter histórico de la fachada, por lo que el aislamiento se realizó desde el interior en el frente hacia la calle. Por fuera, se restauraron las ornamentaciones originales: zonas de revoque rugoso se alternan con superficies lisas, manteniendo la solución monocromática típica de la arquitectura letona de la época. La fachada se complementa con acentos en rojo carmín –la cubierta metálica y los alféizares– donde también se integró la iluminación. Una puerta verde oliva, de diseño lacónico, completa el portal: allí se restauraron las bóvedas históricas y se incorporaron elementos de iluminación contemporáneos en el muro.

A través del portal se accede al patio, donde aparece una escena inesperada: un oasis verde en pleno centro urbano. El patio está rodeado por antiguos edificios industriales y talleres que fueron reconstruidos en distintas épocas. Sus fachadas aún evidencian estas transformaciones, con materiales que van desde ladrillos cerámicos y dinteles metálicos de principios del siglo XX hasta ladrillos de silicato blanco, característicos del período soviético. A este collage se suman varios elementos metálicos rudimentarios que alguna vez cumplieron funciones específicas.


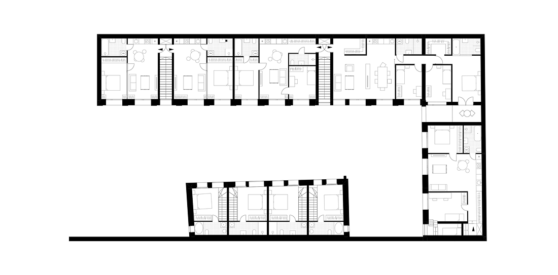
El concepto del proyecto se basa en la idea de adaptive reuse, cuyo objetivo es minimizar la construcción nueva y el empleo de materiales adicionales, y maximizar la preservación de las estructuras existentes, más allá de su valor arquitectónico. Como enfoque, el adaptive reuse potencia el valor de los edificios al otorgarles no solo una nueva función, sino también cualidades estéticas renovadas. La organización interior de los edificios fue adaptada al uso residencial. El conjunto incluye tanto pequeños dúplex tipo estudio como departamentos más amplios con terrazas y balcones franceses.

El jardín se concibe como un elemento unificador y generador de comunidad. El proyecto evita reproducir la práctica extendida de destinar los patios al estacionamiento: en su lugar, se incorporan áreas verdes y estacionamiento para bicicletas. También se utilizan recursos arquitectónicos para fomentar el sentido comunitario. Las ventanas de planta baja son grandes, con amplios alféizares de hormigón a baja altura que invitan a sentarse en los días cálidos. Al abrir las ventanas, el espacio interior fluye de manera orgánica hacia el exterior. Fuera, pequeñas terrazas se apoyan directamente sobre una base firme de grava –sin tarimas elevadas ni otros revestimientos– permitiendo colocar mobiliario exterior. De este modo se integran con la vegetación circundante, sin marcar límites, aunque garantizando cierta privacidad relativa, ya que todo el patio es, en esencia, una propiedad común.


