
El proyecto de 30+8 viviendas sociales en la calle Josep Togores de Palma de Mallorca, diseñado por Vivas Arquitectos, responde a la necesidad de vivienda asequible desde una mirada sostenible y arraigada al territorio. Con un total de 38 unidades distribuidas en dos edificios, el conjunto combina innovación y tradición mediante el uso de bloques de tierra comprimida (BTC) producidos localmente y forjados de madera, reduciendo la huella de carbono y reforzando la identidad constructiva de la isla. Organizadas en torno a patios interiores y pasarelas exteriores, las viviendas favorecen la interacción comunitaria, la ventilación cruzada y el confort climático. Su diseño compacto y bioclimático optimiza el uso del espacio y potencia la vida cotidiana, conciliando eficiencia energética, sostenibilidad y cohesión social en un mismo modelo de habitar.


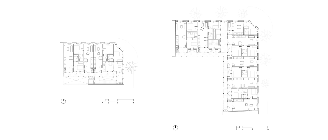
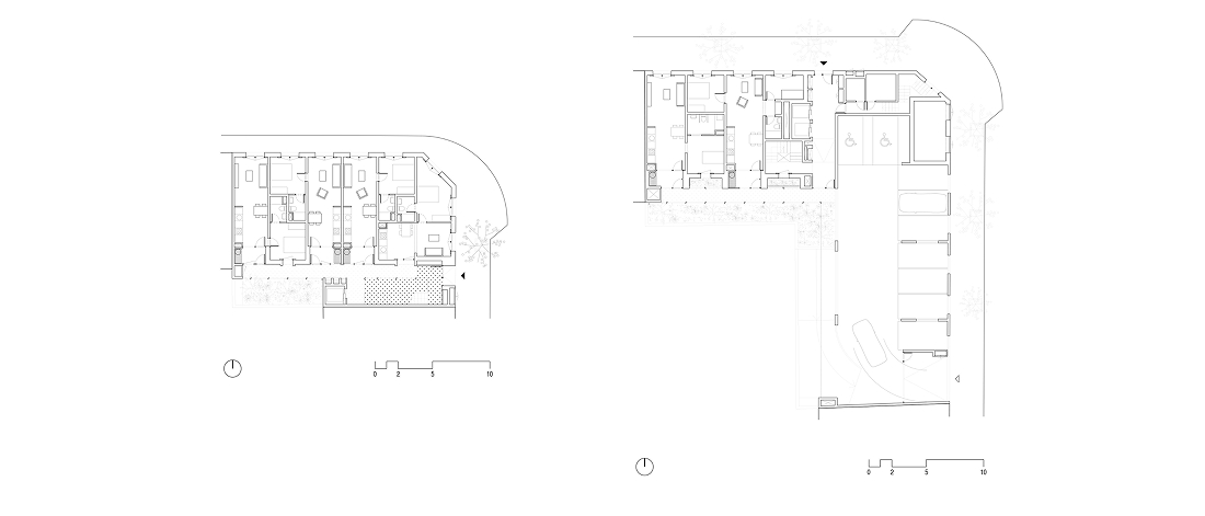
El proyecto se ubica al norte de Palma, en un tejido heterogéneo desarrollado por etapas, donde conviven áreas agrícolas con viviendas de baja densidad. La solución estructural retoma una lógica tradicional en la que la propia estructura del edificio define los espacios habitables, integrando funciones portantes y de uso. La propuesta busca una correcta inserción en el entorno urbano y una respuesta funcional acorde al programa. El edificio principal se implanta en una parcela en esquina con forma de “L” y una profundidad edificable de 11,5 metros. Se organiza en planta baja y cuatro niveles destinados a viviendas, mientras que el sótano y parte de la planta baja alojan un estacionamiento con 30 plazas. Un segundo volumen, situado en una parcela rectangular, cuenta con planta baja y un primer piso que albergan ocho unidades adicionales.


El acceso a las viviendas se produce a través de un vestíbulo que conduce a un patio interior desde el cual las unidades se distribuyen mediante pasarelas porchadas. Este esquema refuerza los vínculos vecinales y establece un gradiente claro entre lo comunitario y lo doméstico. Las viviendas, de uno o dos dormitorios, tienen doble orientación y prescinden de pasillos, organizándose en torno a una cocina central vinculada visualmente con la sala de estar. En el suroeste, una galería multifuncional aporta privacidad y confort térmico, actuando como captador solar en invierno y favoreciendo la ventilación cruzada en verano.


La estructura combina forjados de madera con muros portantes de BTC (bloques de tierra comprimida), un material sostenible y de proximidad cuya producción en Mallorca reduce emisiones de transporte y promueve la economía local. Su fabricación sin cocción disminuye el consumo energético y su porosidad favorece la transpiración de los muros, evitando condensaciones y mejorando la calidad del aire interior. La elevada inercia térmica del BTC contribuye a mantener temperaturas interiores estables, reduciendo la demanda de climatización y mejorando la eficiencia energética. Su capacidad aislante disminuye la transmisión acústica y térmica, mientras que su resistencia a la compresión permite construir muros de carga duraderos, seguros y de bajo mantenimiento. En combinación con forjados de madera prefabricados, el sistema ofrece una construcción rápida, equilibrada y sostenible.




El uso del BTC establece un vínculo directo con las tradiciones constructivas de la isla, donde materiales locales como el marés han definido históricamente la adaptación de la arquitectura al clima mediterráneo. En estas prácticas, la estructura misma conformaba el espacio habitable, integrando técnica y entorno. En el contexto actual de crisis climática, la tierra como material autóctono se presenta como una respuesta sostenible que reduce la huella de carbono y refuerza la identidad cultural de Mallorca. Este enfoque actualiza los saberes locales y fomenta una relación más responsable entre los habitantes y su territorio.

