
El proyecto se ubica en el barrio porteño de Núñez, en un contexto de transformación de densidades y usos que muchas veces deriva en la refuncionalización de los edificios existentes.

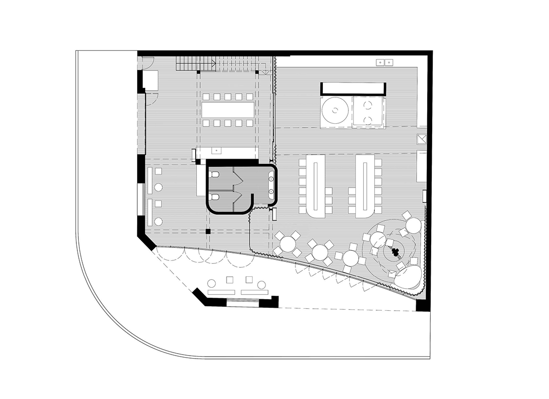
Para el caso de Ness, se propuso transformar un galpón de esquina, utilizado hasta ese momento como depósito, en un restorán, bar y cocina de producción.

En el exterior, se mantuvo el carácter austero y la volumetría simple: muros de nueve metros de altura, con algunas pequeñas aberturas en la planta alta y tres persianas en planta baja que servían de acceso a los diferentes sectores del depósito.


En el interior, se reemplazaron los muros portantes que subdividían la planta por vigas y columnas metálicas que permitieron liberar el espacio de apoyos y reorganizar la disposición en torno a un nuevo núcleo de servicios. Mediante un sistema de carpinterías metálicas se configuraron distintas formas de uso y se redefinió la relación de estos nuevos espacios con lo público.


En la gran sala de triple altura una serie de elementos resultan clave para dotar de carácter y escala al espacio: la isla de fuegos y sus tirajes, el puente montacarga, el olivo y la luz cenital proveniente de las lucarnas que, con su movimiento y variación de color, generan diferentes escenas al mismo tiempo que establecen una relacion particular con el exterior.


El diseño del mobiliario y de los objetos de menor escala posee un fuerte carácter funcional y, al mismo tiempo, aporta al conjunto a través de sus detalles y su materialidad, como piezas de un sistema mayor que cobra sentido en la relación entre sus distintos elementos.




