
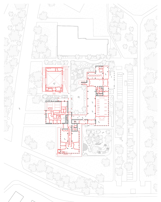
El Centro de Servicios Gentbrugge, diseñado por Paul Felix y situado en el borde de los Gentbrugse Meersen, está compuesto por tres edificios cuidadosamente vinculados, de manera que cada uno tiene autonomía, al mismo tiempo que permite su interacción con el espacio generado entre ellos.


El proyecto de transformación propone intervenciones que modifican el carácter del conjunto: de un edificio administrativo a un edificio urbano donde el encuentro entre los distintos usuarios se convierte en el eje central. Cada edificio se corona con una ampliación —sala de danza, espacios de oficinas y área de juegos en la azotea—. Se retoma la intención de Felix de cultivar flores y plantas en los balcones profundos. En el interior, todas las partes del programa cuentan con una dirección hacia un espacio público de circulación. La biblioteca funciona como el núcleo de la planta baja y facilita la interacción entre los diferentes usuarios.

A su vez, se incorpora un cuarto edificio, la sala de espectáculos. Este conforma, junto con los edificios adyacentes, un conjunto multifacético en el espacio abierto. Los nuevos elementos de fachada de hormigón se disponen siguiendo un ritmo que se alinea con la cadencia del edificio existente. Los paneles esbeltos se curvan de acuerdo con una lógica tectónica que expresa la nueva fase constructiva.

En general, los edificios de hormigón de la década de 1970 suelen ser desestimados como estructuras grises y lúgubres, destinadas a ser demolidas lo antes posible. Las ampliaciones livianas en madera, acero y vidrio a menudo refuerzan aún más esta percepción. El proyecto para De Felix —un conjunto multifuncional que acoge a niños que van a la escuela, usuarios de la academia, la biblioteca, la policía y la administración municipal— ejecuta de manera inequívoca la idea de “construir sobre” su pasado de hormigón. Al considerar los distintos tonos del hormigón, los variados tratamientos superficiales y la variedad de formas que adopta la estructura protagonista como un rico repertorio de herramientas, es posible revertir esa percepción negativa.

Así, el proyecto deposita una confianza radical en la espacialidad generosa y acogedora que ofrecen estos edificios, y la extiende hacia un nuevo conjunto. Se incorporan cuidadosamente variantes de columnas, paneles de fachada y vigas de hormigón. Lo antiguo y lo nuevo están claramente emparentados. Los nuevos elementos retoman el ritmo de las estructuras existentes, al tiempo que introducen bordes y líneas más suaves. Los edificios se elevan y se amplían, como si el diseño original continuará desarrollándose. Una nueva sala teatral, con una fachada de hormigón portante, se integra de manera fluida en el conjunto.
