
Magasin 4, un lugar mítico para la cultura underground desde hace más de veinticinco años, se implanta a lo largo del canal de Bruselas.


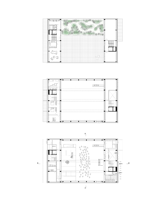
Concebido como una infraestructura cultural viva y en constante mutación, este nuevo espacio dedicado a la música y la celebración, duplicó su potencial espacial y estructural.

Desde el inicio, la arquitectura ofrece un excedente de espacio para multiplicar las actividades previstas. A largo plazo, la estructura portante sobredimensionada permite añadir diferentes niveles sobre y a ambos lados del volumen existente.


Magasin 4 ensaya una arquitectura pública que celebra las iniciativas, la energía y la alteridad de Bruselas, abriendo el edificio a usos imprevistos y a otros futuros posibles.
