
El Hogar Alemán es una residencia ubicada en la zona de Chicureo, un suburbio al norte de la ciudad de Santiago. Su propósito es brindar atención especializada a personas mayores que requieren cuidados específicos. El proyecto fue impulsado por una organización chileno-alemana sin fines de lucro con más de veinte años de experiencia en el cuidado de personas mayores.

El objetivo central fue crear un espacio que favorezca la autonomía de cada residente, y que fomente los vínculos sociales entre ellos, bajo el cuidado y atención de profesionales especializados.

El terreno se extiende a los pies de la cordillera de los Andes, sobre seis hectáreas de paisaje semiárido, con escasa vegetación y presencia de arbustos nativos. Delimitado por dos suaves quebradas que albergan mayor vegetación, el sitio ofrece un entorno ideal para la creación de un parque que rodea el edificio. Este parque no solo funciona como espacio de recreación y conexión con la naturaleza, sino también como oportunidad para restaurar la flora autóctona mediante la reintroducción de especies endémicas.


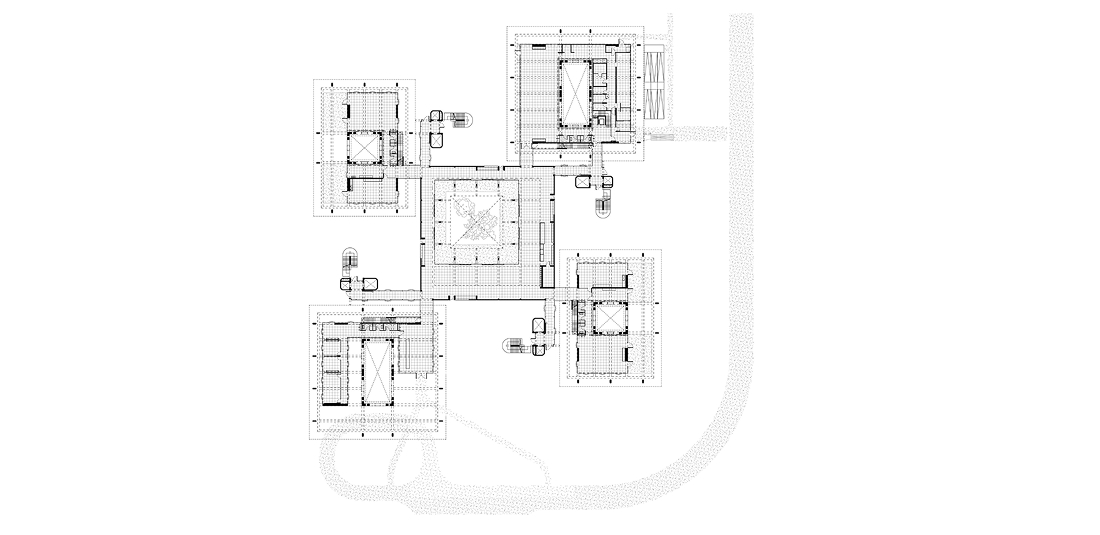
El conjunto está compuesto por cinco edificios interdependientes, que albergan ciento cuarenta dormitorios y espacios comunes. El edificio central, de un nivel, organiza el núcleo del proyecto con una cafetería y espacios comunes para residentes y visitantes. A su alrededor se disponen cuatro edificios de tres y cuatro niveles, con áreas comunes –gimnasio, salas de talleres, sala de juegos, comedor y servicios– ubicadas en planta baja. Esta disposición libera un amplio espacio comunitario a nivel del suelo y propone una relación directa con el parque. La construcción en hormigón armado permite grandes luces estructurales, que brindan flexibilidad para usos futuros. Las columnas perimetrales de hormigón unifican visualmente el conjunto y otorgan al edificio una presencia monumental, que introduce una idea de lo “público” en un entorno suburbano.

Los niveles superiores alojan los dormitorios, organizados en unidades tipo “hogar compartido” de doce o dieciséis personas, que favorecen los vínculos cercanos entre residentes. Cada dormitorio fue concebido como un espacio mínimo, con atención en sus áreas exteriores. En lugar de los pasillos tradicionales, los recorridos exteriores son áreas de estar, con mesas comunes y ventanas interiores que conectan visualmente las habitaciones con los pasillos. Estos espacios se organizan en torno a patios, lo que garantiza iluminación y ventilación natural. Además, amplias terrazas abiertas al paisaje completan la propuesta: sin divisiones, invitan al encuentro vecinal y la conversación.

La arquitectura y el paisajismo del proyecto proponen distintas escalas de cuidado, interacción y privacidad para las personas mayores. Escaleras y espacios intermedios no se conciben solo como zonas de circulación, sino como transiciones entre lo íntimo y los lugares que propician el encuentro entre residentes, cuidadores, personal administrativo y visitantes. A través del diseño, el proyecto busca generar vínculos entre sus habitantes, como forma de contrarrestar la condición aislada del entorno suburbano.
