
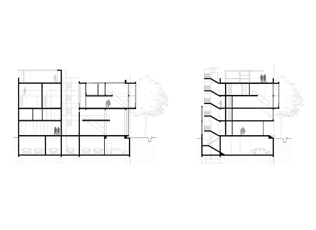
Este edificio de uso mixto combina comercio con vivienda. Se compone de dos cuerpos articulados por un tercer cuerpo que contiene la caja de escaleras y ascensores. El programa comprende: dos locales comerciales, el principal y más grande para la empresa de amoblamientos de cocina “Johnson”; el segundo para una tienda de decoración, y diez departamentos de seis tipologías. De los diez departamentos, dos se desarrollan en una planta mientras que los ocho restantes son dúplex, todos con ventilación cruzada al ser el tamaño de estos parte de la crujía estructural.


Aun cuando el dúplex como tipología de vivienda aparece durante la Revolución Industrial en países como Inglaterra y Holanda como una manera de poder densificar las ciudades frente a la migración del campo a la ciudad, será al término de la Segunda Guerra Mundial, y producto de la devastación de las ciudades europeas, que el Ministerio de Reconstrucción y Desarrollo Urbano le encargue a Le Corbusier en el verano de 1945 un plan de viviendas en alturas para la clase media. Finalizada en 1952, con la Unité d´habitation de Marsella nacía el concepto del dúplex moderno en la arquitectura y un modelo que hasta la actualidad es utilizado.

Para los efectos de explicar esta obra, y en consecuencia que se pueda entender en su real magnitud, el proyecto se abordará a partir de tres conceptos: emplazamiento urbano, la luz como develador y articulador del programa; y por último la funcionalidad como fluidez espacial.

Emplazamiento urbano
Ubicado en la calle Rafael Obligado en esquina con Estupiñán, y enfrentando a la Avenida San Martín sur, el proyecto se encuentra alejado del casco fundacional de la Ciudad de Mendoza, en un barrio residencial de baja altura.

El partido general es claro y lógico: el edificio se compone de dos cuerpos, el principal se emplaza enfrentando la Avenida San Martín sur y el secundario se emplaza en la calle lateral. Esta decisión pone en valor y expone urbanísticamente el local comercial Johnson dividiendo la fachada en dos: por un lado, el local en doble altura completamente transparente que permite observar hacia el interior; y por otra parte los departamentos dúplex con un controlado trabajo compositivo que divide en cuatro paños vidriados la fachada junto con la utilización de celosías verticales para el control solar y privacidad. Al observar la fachada de frente se aprecia, por un lado, la transparencia y planta libre del local, y, por otro, la secuencia de columnas de sección circular que siguen la modulación estructural de los departamentos dúplex en la parte superior otorgando un orden compositivo clásico y armónico a la fachada principal.

La separación de los dos cuerpos es a través de un vacío por donde se ingresa a las viviendas. Articuladas por un cuerpo plástico que contiene las circulaciones verticales, el ascensor y la escalera, junto con las circulaciones horizontales y los pasillos, hacen del acto de acceder una experiencia monumental ya que el vacío toma la altura completa del edificio para transformarse en un umbral urbano rematando en su parte superior en una visera que une formalmente los dos volúmenes y con ello define el concepto de puerta.

La luz como develador y articulador del programa.
El proyecto se emplaza en un lote en esquina que da a dos calles, esto hace que el fondo del terreno limite con dos propiedades y, en consecuencia, no se puedan diseñar esas fachadas. Frente a esta problemática se decide proyectar los cuerpos conservando la fachada continua del barrio, dejando el fondo del terreno como un vacío central que da lugar a las circulaciones y a un patio interior controlado, hacia donde ventilan los departamentos, permitiendo el ingreso de luz natural y, sobre todo, una privacidad resguardada.


Gracias al trabajo plástico de los muros colindantes vecinos, construidos con bloques de cemento prefabricado con figuras geométricas, se conforma una composición artística que realza las cualidades espaciales del lugar. El espacio vacío se transforma así en un juego de luces y sombras a medida que el sol lo recorre, evocando al libro El elogio de la sombra de Junichiro Tanizaki de 1933. Este espacio comienza en la zona de los estacionamientos subterráneos y remata con la altura total del edificio, brindando un bello espacio de contemplación desde que me bajo del auto hasta que subo a mi departamento.


Funcionalidad como fluidez espacial.
Le Corbusier innovó en el uso completo de la crujía para obtener ventilación cruzada y permitir el ingreso de luz natural por la mañana y por la tarde. Junto con el estar en doble altura, esto se tradujo en una mejor calidad de vida, en lo que a espacialidad e higiene se refiere, sin dejar de lado cómo fraccionó el uso familiar de los baños incorporando los lavamanos en los dormitorios de los niños. En el caso de este proyecto, Canzian incorpora una nueva variable: tanto en el primer como en el segundo piso el recinto destinado al baño se ubica estratégicamente en el centro de la planta, permitiendo ser recorrido alrededor y con ello vincular funcionalmente varios recintos de manera fluida generando un nuevo orden en su uso y entendimiento.

Para enfatizar esta solución espacial el volumen se construye con planchas laminadas en melanina blanca. Con ello, se busca generar un lenguaje de “mueble” contrastando con la materialidad del resto del departamento y, siguiendo las leyes constructivas de cómo se hace un mueble, recuerda a las enseñanzas de Gerrit Thomas Rietveld en su obra de la casa Rietveld Schröder de 1924.


La terraza será otro punto alto del proyecto: tensiona los dos volúmenes, el espacio destinado al quincho-parrilla y el sector de los baños, dejando una espacio libre para mirar hacia la ciudad. Aquí, el homenaje al maestro Mies van der Rohe es un poco más evidente pero sutil, dejando en claro las aproximaciones proyectuales que guiaron la concepción y diseño del proyecto.







