
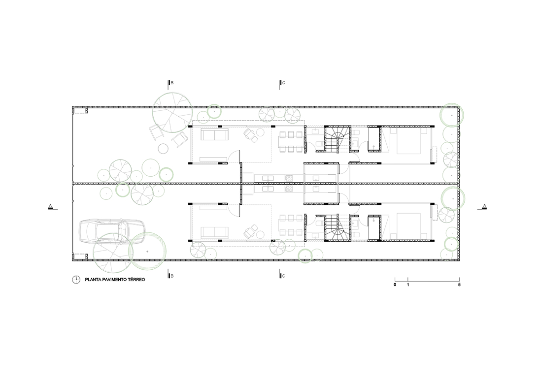
Ubicadas en la Playa de Campeche, Florianópolis, Brasil, dos residencias independientes se construyen en un terreno compartido, sin perder de vista la autonomía de cada una. El terreno, se dividió por la mitad y se sometió a las reglas de la legislación, lo que resultó en un área edificable de apenas 4,5 m por 19 m para cada casa. La restricción espacial guió el proyecto, orientando las decisiones de implantación, el sistema constructivo y la organización interna. La casa nace del límite, y responde a él con inteligencia y rigor.

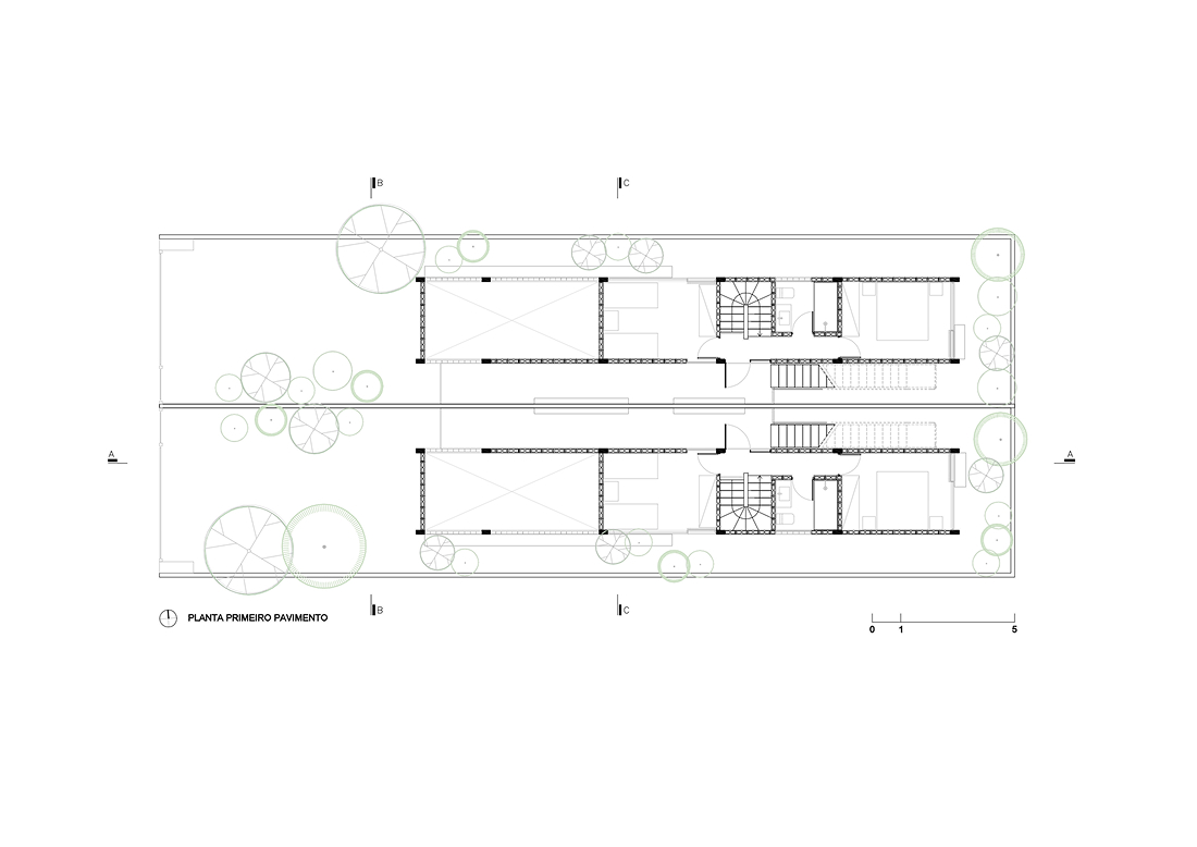
El resultado es una arquitectura vertical y permeable, de pocos y sobrios materiales. Compartiendo medianera, las dos viviendas logran retirarse de los límites del terreno para conseguir así espacios exteriores verdes perimetrales, garantizando el ingreso de luz natural y ventilación cruzada para todos los espacios interiores. Una terraza accesible en la cubierta se suma al programa para el aprovechamiento de los espacios sociales exteriores.


Las casas organizan un conjunto arquitectónico que establece una convivencia respetuosa entre vecinos que son amigos, sin renunciar a la privacidad. El ingreso se da a través del jardín frontal de cada vivienda, el cual muestra, a partir de elementos de relación visual y de circulación, un equilibrio delicado entre lo común y lo individual.


En planta baja, las áreas sociales se unifican en un único espacio. El techo de doble altura en la sala y las grandes aperturas diluyen los límites entre el interior y el exterior. La suite principal se orienta hacia la parte posterior, en contacto directo con el jardín. En planta alta, dos dormitorios adicionales completan el programa.




