
La casa se ubica en un barrio cerrado del suroeste de Córdoba, cerca de las nacientes del arroyo La Cañada, que tras recorrer distintos barrios llega al centro de la ciudad antes de desembocar en el río Suquía.

El terreno presenta una suave pendiente hacia el norte y limita con la cancha de golf del barrio. Estas condiciones determinaron la organización del proyecto: el área social se eleva en el primer piso para aprovechar las vistas lejanas, mientras que los dormitorios, el estar diario y los servicios se disponen en planta baja, en estrecha relación con el jardín.

La planta baja actúa como un basamento murario sobre el que se apoya una estructura independiente que sostiene la cubierta abovedada, dispuesta en cinco bandas paralelas que ordenan todos los espacios. La distancia entre ejes responde a la máxima ocupación posible del terreno, configurando un techo tipo “sombrilla” que genera áreas intermedias tanto al norte como al sur.

El proyecto se organiza en torno a estas cinco bandas, que definen su estructura, su distribución programática y su modulación constructiva. Una de ellas marca el eje longitudinal del acceso, articulando el recorrido desde la llegada hasta el parque exterior.

El ingreso se produce a través de un espacio de doble altura con vistas al campo de golf, donde la escalera conecta ambos niveles y prolonga el recorrido hacia la piscina. De este modo, la organización interior se proyecta naturalmente hacia el exterior.


Dos operaciones principales estructuran la casa: un podio murario que resuelve el vínculo con el terreno y una cubierta abovedada que actúa como umbrario, generando amplios voladizos en los frentes norte y sur.


La materialidad expresa esta dualidad. En planta baja, los muros de hormigón ciclópeo aportan peso y carácter; en la planta alta predominan la transparencia y las vistas, mientras los muros laterales de hormigón garantizan privacidad. La obra expone con honestidad su proceso constructivo y el oficio que la sustenta. Piedra y hormigón dominan el conjunto, reservando el ladrillo visto para las bóvedas, donde su textura y color tamizan la luz, bañando los espacios en una atmósfera cálida y suave.

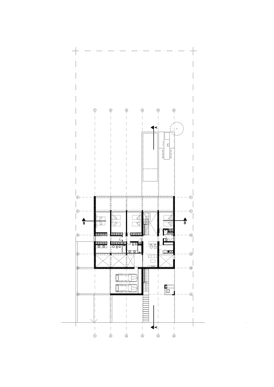
Las instalaciones eléctricas, dispuestas a la vista mediante cañerías galvanizadas, refuerzan el carácter fabril del proyecto y aseguran flexibilidad para futuras adaptaciones. Para liberar el techo abovedado, el tanque de agua se concibe como una pieza escultórica independiente, que sin tocar la estructura principal otorga escala e identidad al ingreso.

En síntesis, se trata de una casa en la periferia de una ciudad en expansión, concebida con técnicas arcaicas y saberes locales, pero desde una mirada moderna. Una arquitectura sincera y atenta a su lugar y a su tiempo.

